Search Site

Buy and Sell

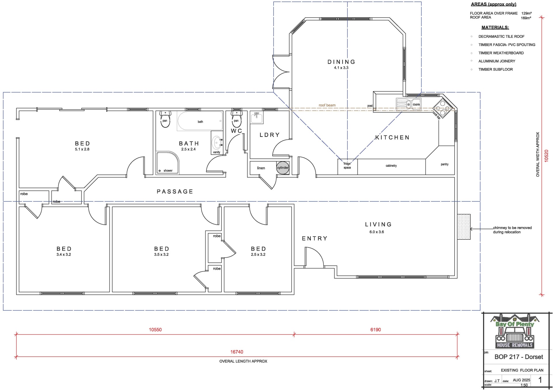
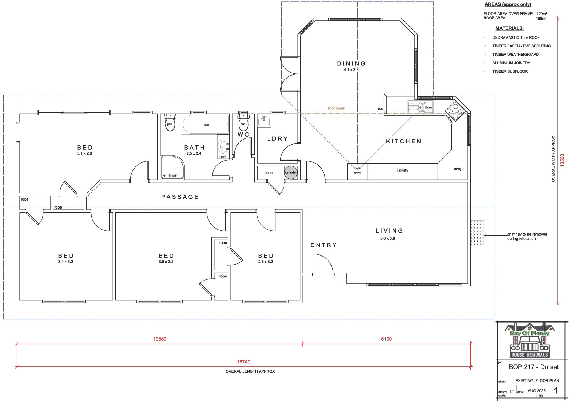
BOP217 Dorset 4 bedroom home

This lovely 4 bedroom home is due for removal shortly and has plenty of character. Native timber floors, good quality white single glazed windows. 

For sale by negotiation depending on your site - conditions apply. For more information or to see if this would suit your site please forward your site address for us to review.

It currently has a garage to be detached which will come re-clad  (bedroom end)  The bay window will be removed for transport and re-attached at it's new destination

Base Measurements approximately 16.7 metres long x 10.5m on widest dining room end. 

SEE ATTACHED FLOORPLAN

Expressions of interest welcome. Possibly could be moved directly to site if you act now! Conditions apply.

 

Enquire Now